Large Home Addition with Major Renovation
This project for Milton Construction services took place in Rustburg, just between our main service areas of Appomattox and Lynchburg. Building an addition to your home is probably one of the largest single investments that you will ever make short of the building a new home. We are able to guide you through that process and achieve your desired results in a reasonable time and within your budget—while being as minimally invasive to your family life as possible.
The first phase of this project included us designing and building a home addition for a new Master Bedroom, Master Bathroom, Sunroom, Laundry Area and unfinished Basement too. The total living space added is just over 1,250 square feet.
Here we introduce how our clients home looked before the arrival of Milton Construction, and we also include the demolition of the deck.
The demolition occurred after the design phase was completed. During the design phase, we finalized the details of the new addition project. We strived to do as much of the planning work as possible up front, so that once the job was started, it could run along smoothly and be completed in a timely manner with as few delays as possible.
The project is broken up into two phases. The first for the addition and the second for the renovation.
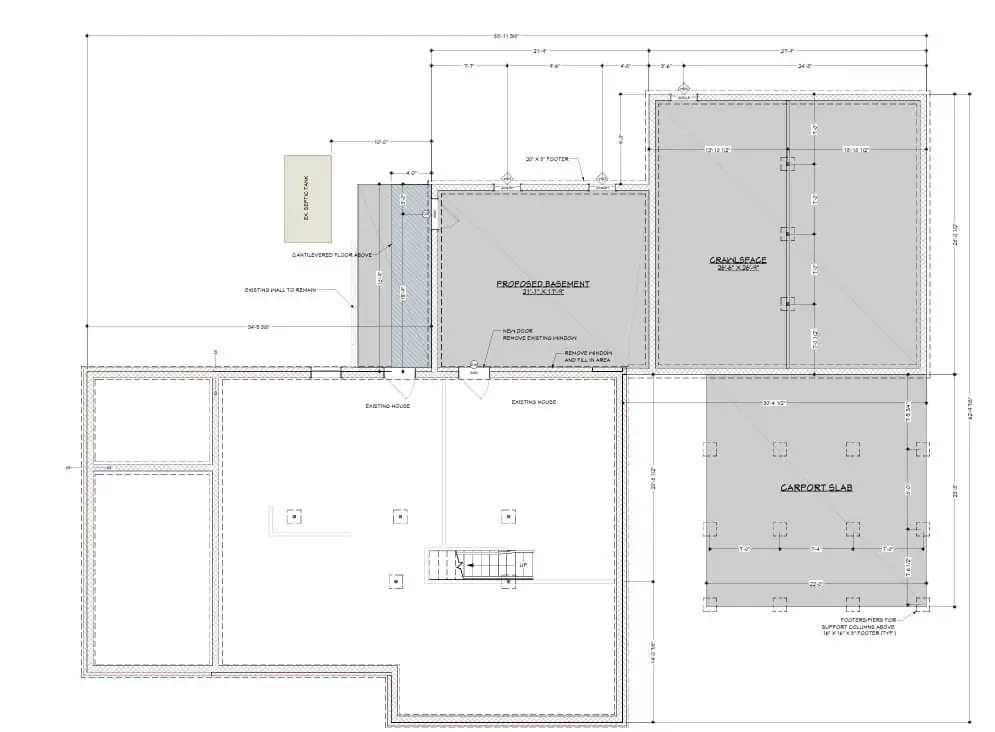
Here are the measurements for the basement, crawl space under the Master Bedroom & Bath, and the foundation for the Carport.
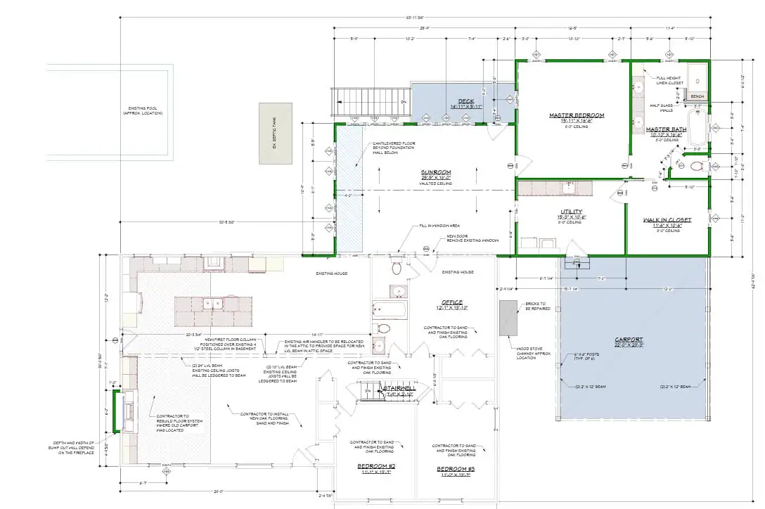
Here you can see the complexity of the main level floor plan.
From bottom to top, every element in meticulously planned.
The Elevations Plans allow you to see a more complete view of the planned addition and renovation project.
Now it was time to get to work. There is a close up showing us getting creative with the design to keep the basement entry open. The crawlspace under the sunroom and master suite shows the main girder supported by block piers. We end with us standing in the new master bedroom looking into the new bath.
The first area to show after the Home Addition project was completed is this large sized sunroom, with lots of windows and a door to the exterior small deck that has stairs heading towards the swimming pool. You see the new master bedroom on the left and laundry on the right.
Here we are in the new master bedroom from the sunroom visible to the left. The new master bathroom is very large spacious with a separate soaking tub.
We bride ourselves in paying attention to details. The custom-built tile shower has a cute niche in the wall and a bench along the half wall.
This walk-in closet is larger than some bedrooms. We custom designed and built the wooden shelves.
The last area of the Addition is the new laundry room, facing into the sunroom with new hardwood flooring throughout.
Phase 1 was now completed, and it was now time to move towards the Renovation portion of the project.
We completed a major home addition and temporarily relocated the homeowners into the new space while we began Phase Two of the renovation. The second phase focused on a substantial remodel of the existing home, with an emphasis on the kitchen and main living areas. The project included removing an entire wall, reconfiguring windows and doors, reframing a former carport conversion to align with the home’s floor elevation, installing new wood flooring, refinishing existing floors, and completing a full kitchen remodel with new custom cabinetry.
A former carport conversion required major structural correction. We rebuilt the floor system to level the kitchen and living area, removed a central wall, and installed a large LVL beam. Temporary ceiling supports are shown prior to beam installation.
Nearing the finish line while the floors finished and cabinetry being installed. One person here is preparing the cabinets for trim moulding, another is straightening cabinet doors, and the other two guys are assembling the crown moulding.
Through our design process, even tiny aspects of the project are brought in to view and selected, such as cabinetry details like side panels, island legs, crown mouldings, and door styles. All of which bring the homeowners vision into fruition.
New oak hardwood flooring was installed throughout the home and color matched to that of the existing.
Another custom Milton Construction Company fabricated part of the project is the support column covering designed to match the newly installed cabinetry kitchen and dining room. Further in the living is a custom fabricated mantel cabinet, enclosing the gas logs firebox, and designed to match the newly installed cabinetry & tile elements of the kitchen and dining room.
Of course, the kitchen was a centerpiece of this new home renovation. We installed this low-profile GE 36" induction cooktop along with an exhaust hood unit matching the cabinetry. Quartz countertops were installed in the kitchen with an accompanying herringbone tile backsplash.
All lighting, fixtures, cabinetry, and finishes were selected by the homeowner prior to the renovation through our comprehensive design process. We guided the homeowner throughout this phase, making selections simple, clear, and stress-free. Beadboard style side panels complimented the solid maple, full overlay, flat-panel doors painted Origami White.
With the completion of both phases, we’re delighted that our clients can now experience and enjoy their entire beautifully renovated home.
I cannot say enough good things about my experience with Milton Construction. From the initial contact through final completion of my bathroom remodel, it was a positive and painless process. I appreciated the attention to detail and the care they took of my home as they worked. Everything was completed in a timely fashion and I was kept apprised of any schedule changes. I recommend Milton Construction to everyone.
~ Robin Hancock, Lynchburg, VA


