
New Garage Addition in Lynchburg
This project for Milton Construction services took place in the area of Lynchburg. Building an addition to your home is probably one of the largest single investments that you will ever make short of the building a new home. We are able to guide you through that process and achieve your desired results in a reasonable time and within your budget—while being as minimally invasive to your family life as possible. The project included us designing and building a home addition for a Detached Two Car Garage.
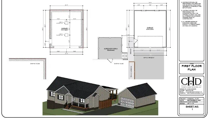
We begin by showing the garage where we had to go for a county variance for zoning since it was very close to the property line. It sure turned out blending into the existing house very nicely.
Here we introduce how our clients home looked without the garage addition before the arrival of Milton Construction.


Now it was time to get to work. We begin by laying out the new building before excavation and footers. You see us measuring and squaring the building layout while making sure to keep it within the owner’s property line.


The new detached building was set far enough back and away from the home to allow for an unimpeded view from the existing screen porch.
The garage has siding and brick that match the house. We also helped select a few nicer coach lights for outside the entry door and garage door.
The ease and beauty of a detached garage with the convenience of a quick walk into the back door of the home!
An insulated garage door with automatic opener is standard. This customer opted for one single 16 ft wide door. Another option would have been two smaller doors. Our client’s cars are normal size, but garage doors also come in taller heights for those with larger vehicles/pickups.
The interior is finished with insulation, drywall, trim and painting. LED strip lights are also installed. There is also a sealed concrete floor.
The far side and rear of the detached garage back up to lovely woods, which were preserved as much as possible in the building process.
We invite you to make contact to discuss your Home Addition dreams and know you will welcome the relationship and enjoyment as these Lynchburg neighbors.











