
Forest Master Bathroom Remodel Project
This project was completed in Forest neighboring Bedford, a bit further away from our office than we normally travel, but because their family had ties to Appomattox and one of our team members, we decided to do it. The project included us remodeling a master bathroom.
HOME REMODELER INVITES YOU TO TAKE A TOUR
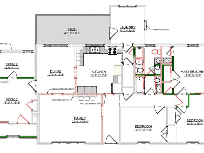
Our customers are a young family with small children. They recently purchased an older home (with a million-dollar view of the Peaks of Otter). However, the home had only one functional bathroom. After our initial meeting, we left them to work with our designer to create a new layout that now had a master bath and a second hall bath for the kids. A much better layout for a growing family.
We then entered the design phase so that our clients can visualize the final remodeling project. We strived to do as much of the planning work as possible up front, so that once the job was started, it could run along smoothly and be completed in a timely manner with as few delays as possible. The goal was to create a new layout that now would have a master bath and second hall bath for the kids, a much better layout for a growing family.


Our clients had to completely move out of the house for a few months while the work was taking place since there was no functional bathroom for most of that time. They were real troopers and in the end they found out it was worth the wait and the inconvenience.
This is our first home renovation, and we could not be more grateful for and impressed with the entire Milton Construction crew! They have been incredible through and through, proactively addressing the details we had not considered, and getting our input to ensure absolutely everything is to our complete satisfaction. We truly felt taken care of at every single point in the process and were treated with the utmost respect. We will look forward to calling on Milton Construction for future projects, and highly recommend them!
~Micah & Vanessa, Bedford, Va.




